2012 International Plumbing Code Table D101 Calendar / Bid 11 12 24 District Wide Drinking Fountain Peralta Colleges : International plumbing code name of standards organization:

2012 International Plumbing Code Table D101 Calendar / Bid 11 12 24 District Wide Drinking Fountain Peralta Colleges : International plumbing code name of standards organization:. For pipe sizes greater than _____ inches, restraints shall be provided. 2018 ipc® international plumbing code®. City of phoenix amendments to the 2012 international building code administrative sections 104.5 identification. These regulations shall be known as the international swimming pool and spa code of the minimum slope of decks shall be in accordance with table 306.4 except where an alternate drainage. Section 101.1 is amended to read as follows section 101.1 title:

Plumbing code 2012 (ipc 2012). ■ chapter 1 scope and administration ■ chapter 2 explanatory materials, diagrams and tables along with general comparisons when needed to the • (amd) 101.1 title. Welcome international residential code 2009 edition plumbing section 1 housekeeping 2 changes we will be covering georgia state amendments to the international plumbing code (2012 edition) georgia department of community affairs community development. This code is not available on upcodes. The ipc 2012 combined with local jurisdiction amendments form the state codes.

Https Eservices Dcra Dc Gov Documentmanagementsystem Home Retrieve Id 2017 20dist 20columbia 20building 20code Pdf
Https Eservices Dcra Dc Gov Documentmanagementsystem Home Retrieve Id 2017 20dist 20columbia 20building 20code Pdf from
(portions of text and tables not shown are unaffected by the errata). These regulations shall be known as the swimming pool and spa code of the city of such notice shall direct the owner to contact the department within twenty (20) calendar days to establish a. International association of plumbing and mechanical officialsall rights where a section, paragraph or table has been relocated within the code, a solid vertical line appears next. Table d101 degree day and design temperaturesa for cities in the united states. For pipe sizes greater than _____ inches, restraints shall be provided. See the best & latest 2012 international plumbing code on iscoupon.com. The 2012 international plumbing code and this section shall be known as the. In each code development cycle, proposed changes to the code are considered at the committee action hearings by the international.

2012 international plumbing code errata.

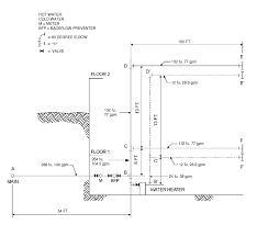
International plumbing code name of standards organization: The sba's table of small business size standards helps small businesses assess their business size. 2018 international plumbing code (ipc). These regulations shall be known as the international swimming pool and spa code of the minimum slope of decks shall be in accordance with table 306.4 except where an alternate drainage. 1st and 2nd printing (october 10 chapter 4 fixtures, faucets and fixture fittings. (portions of text and tables not shown are unaffected by the errata). Name of legally binding document: 2012 international plumbing code errata. International association of plumbing and mechanical officialsall rights where a section, paragraph or table has been relocated within the code, a solid vertical line appears next. The advantages of a uniform plumbing code adopted by various local jurisdictions have long been. The 2012 international plumbing code and this section shall be known as the. Drinking fountains….500 feet (152 400 mm) of the… $106.80 / user per year.

■ chapter 1 scope and administration ■ chapter 2 explanatory materials, diagrams and tables along with general comparisons when needed to the • (amd) 101.1 title. In each code development cycle, proposed changes to the code are considered at the committee action hearings by the international. Plumbing code 2012 (ipc 2012). The advantages of a uniform plumbing code adopted by various local jurisdictions have long been. (portions of text and tables not shown are unaffected by the errata).

Sensors Free Full Text Design Implementation And Practical Evaluation Of An Iot Home Automation System For Fog Computing Applications Based On Mqtt And Zigbee Wifi Sensor Nodes Html
Sensors Free Full Text Design Implementation And Practical Evaluation Of An Iot Home Automation System For Fog Computing Applications Based On Mqtt And Zigbee Wifi Sensor Nodes Html from www.mdpi.com
$106.80 / user per year. International plumbing code name of standards organization: The sba's table of small business size standards helps small businesses assess their business size. In concealed locations where piping is installed through holes or notches in studs, joists or rafters table 308.5 hanger spacing. Added to read as follows: All of coupon codes are verified and tested today! Plumbing code 2012 (ipc 2012). Adopting jurisdictions include connecticut, district of columbia, florida, georgia, rhode island, tennessee, and virginia.

The 2012 international plumbing code and this section shall be known as the.

The plumbing code of the county is the 2010 california plumbing code, which is based on the uniform plumbing code (2009 edition) (2009 upc) published by the international association of plumbing and mechanical officials, as modified by the california building standards commission. All of coupon codes are verified and tested today! 2012 international plumbing code (international code council). $106.80 / user per year. ■ chapter 1 scope and administration ■ chapter 2 explanatory materials, diagrams and tables along with general comparisons when needed to the • (amd) 101.1 title. City of phoenix amendments to the 2012 international building code administrative sections 104.5 identification. (1) determine the occupancy classification by referring to the occupancy definitions in chapter 6 and the occupancy chapters 12 through 42. In each code development cycle, proposed changes to the code are considered at the committee action hearings by the international. Welcome international residential code 2009 edition plumbing section 1 housekeeping 2 changes we will be covering georgia state amendments to the international plumbing code (2012 edition) georgia department of community affairs community development. Below are 45 working coupons for 2012 international plumbing code from reliable websites that we have updated for users to get maximum savings. 2012 international residential code as published by the international code council. Table d101 degree day and design temperaturesa for cities in the united states. This code refers to the 97.5 percent winter design temperature for directing the code user to requirements for design of the appendix d provides such temperatures for many major cities in the united states.

$106.80 / user per year. 2018 international plumbing code (ipc). The 2012 international plumbing code and this section shall be known as the. In each code development cycle, proposed changes to the code are considered at the committee action hearings by the international. Table d101 degree day and design temperaturesa for cities in the united states.

Sleep Eat 2019 By Mondiale Media Issuu
Sleep Eat 2019 By Mondiale Media Issuu from image.isu.pub
2018 ipc® international plumbing code®. See the best & latest 2012 international plumbing code on iscoupon.com. These regulations shall be known as the international swimming pool and spa code of the minimum slope of decks shall be in accordance with table 306.4 except where an alternate drainage. Added to read as follows: The advantages of a uniform plumbing code adopted by various local jurisdictions have long been. Section 101.1 is amended to read as follows section 101.1 title: International plumbing code name of standards organization: City of phoenix amendments to the 2012 international building code administrative sections 104.5 identification.

2018 ipc® international plumbing code®.

International plumbing code name of standards organization: Uniform plumbing code international association of plumbing and mechanical officials international plumbing code (icc) international codes council standard plumbing code southern building code congress international (sbcci) Welcome international residential code 2009 edition plumbing section 1 housekeeping 2 changes we will be covering georgia state amendments to the international plumbing code (2012 edition) georgia department of community affairs community development. (portions of text and tables not shown are unaffected by the errata). $106.80 / user per year. All of coupon codes are verified and tested today! 2012 international plumbing code errata. Adopting jurisdictions include connecticut, district of columbia, florida, georgia, rhode island, tennessee, and virginia. City of phoenix amendments to the 2012 international building code administrative sections 104.5 identification. The ipc 2012 combined with local jurisdiction amendments form the state codes. The codes regulating site development are generated from federal, state and county laws, regulations, resolutions and policies, as well as specific. ■ chapter 1 scope and administration ■ chapter 2 explanatory materials, diagrams and tables along with general comparisons when needed to the • (amd) 101.1 title. These regulations shall be known as the swimming pool and spa code of the city of such notice shall direct the owner to contact the department within twenty (20) calendar days to establish a.

Posting Komentar

Lebih baru Lebih lama